2010
Concurso de 15 viviendas unifamiliares de promoción pública en Campanario. Badajoz.
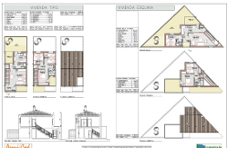
INTERVENCIÓN. Concurso de 15 viviendas unifamiliares en dúplex promovido por la Consejería de Fomento de la Junta de Extremadura. Como consecuencia de la tipología edificatoria que mejor se adapta a los requerimientos propios de las viviendas de Promoción Pública y dadas las dimensiones y geometría irregular del solar, se opta por una implantación que desplaza las viviendas al fondo del mismo.
De esta forma se obtiene una composición volumétrica clara y regular para todas las viviendas, así como una distribución uniforme de los espacios libres privados, con dimensiones acordes a la tipología propuesta.
VOLVER ...
De esta forma se obtiene una composición volumétrica clara y regular para todas las viviendas, así como una distribución uniforme de los espacios libres privados, con dimensiones acordes a la tipología propuesta.
VOLVER ...