2010
Concurso 30 VPO unifamiliares en Villanueva de la Serena. Badajoz.
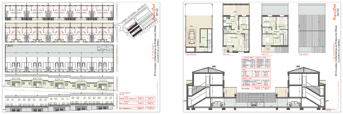
INTERVENCIÓN. Concurso de 30 viviendas unifamiliares en dúplex promovido por URVIPEXSA.
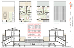
El garaje y el trastero se ubican en un semisótano mancomunado, con un único acceso en el lateral de la hilada. Se dispone de acceso directo desde el garaje a cada una de las viviendas.
VOLVER ...
El garaje y el trastero se ubican en un semisótano mancomunado, con un único acceso en el lateral de la hilada. Se dispone de acceso directo desde el garaje a cada una de las viviendas.
VOLVER ...