2010
Concurso 68 VPO en bloque en Villanueva de la Serena. Badajoz.
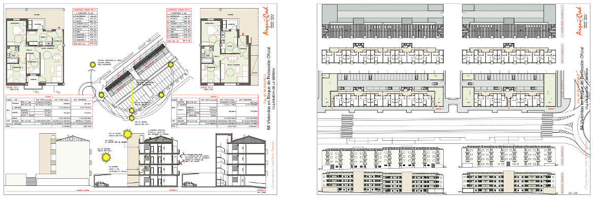
INTERVENCIÓN. Concurso de 68 viviendas en bloque promovido por URVIPEXSA.
El programa de necesidades exige viviendas de una superficie aproximada a 60.00 m2, que servirán para el realojo directo de las familias procedentes de las 112 viviendas a demoler en dos bloque ubicados en las proximidades. Se habilitan locales comerciales en la planta baja a razón de dos por parcela. Los dos bloques dispones de plazas de garajes igual al número de viviendas, ubicados en planta baja, con acceso desde la calle que los delimita lateralmente.
VOLVER ...
El programa de necesidades exige viviendas de una superficie aproximada a 60.00 m2, que servirán para el realojo directo de las familias procedentes de las 112 viviendas a demoler en dos bloque ubicados en las proximidades. Se habilitan locales comerciales en la planta baja a razón de dos por parcela. Los dos bloques dispones de plazas de garajes igual al número de viviendas, ubicados en planta baja, con acceso desde la calle que los delimita lateralmente.
VOLVER ...